Der GZ-Betrieb schliesst vor den Sommerferien 2024
“Damit geht eine 70jährige Betriebsperiode zu Ende und macht Platz für einen Neubeginn im 2026” stand rot auf der Präsentationsfolie, die an der öffentlichen Infoveranstaltung zum Ersatzneubau des GZ Wipkingen gezeigt wurde.
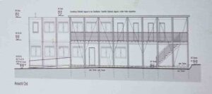
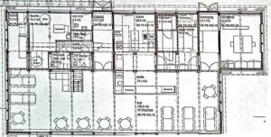
Provisorisches Containergebäude
Während den zweijährigen Bauarbeiten wird im Wipkingerpark ein provisorisches Containergebäude errichtet, das als Begegnungsort, Kreativatelier Büro und Lager dient. Der Betrieb des Wipkihof mit seinen Tieren bleibt gewährleistet.
Baustelleninstallation
Die geplante Baustelleninstallation umfasst das gesamte Gebiet des bisherigen GZ. Damit geht rund 50 % der Fläche am Wipkinger Erholungsraum an der Limmat verloren. Die Verantwortlichen des Hochbauamtes versichern auf Nachfrage des Quartiervereins, die Bauarbeiten so zu etapieren, dass eine teilweise Nutzung des Aussenraumes auch während des Baus möglich ist. Vorgeschlagen wurde z.B, dass die Spielanlagen in den Wintermonaten saniert werden, so dass sie im Sommer zugänglich bleiben.
Situationsplan (c) Google Earth – Einfärbung (c) Quartierverein Wipkingen
Räume gesucht
Im Provisorium ist leider kein Platz für alle soziokulturellen Angebote, die bis anhin in den beiden grossen Räumen an der Ampèrestrasse stattfanden. Es fehlen rund 100 m2. Zusammen mit dem Immobilienamt der Stadt Zürich werden zur Zeit externe Möglichkeiten ausgelotet.
Postgebäude ungeeignet
Das besetzte Postgebäude am Wipkingerplatz wurde auf Anregung des Quartiervereins in Betracht gezogen, es kommt aber leider nicht in Frage. Der bauliche Zustand entspricht nicht den Standards der Stadt Zürich. Es müsste zu viel Geld in die marode Baute investiert werden.
Bauarbeiten bis 2026
von links: Karl Gujer – GZ Wipkingen, Simon Zimmermann – Amt für Hochbauten, Kathleen Puruckherr – Grün Stadt Zürich
Der Objektkredit soll im November vom Gemeinderat bewilligt werden, so dass im Frühling 2024 mit dem Bau des Provisoriums begonnen werden kann. Baubeginn soll dann im Herbst 2024 sein. Im Herbst 2026 ist die Eröffnung für das Publikum geplant.
Begleitgruppe während Bauphase
An der Veranstaltung wurde der Wunsch nach einer Begleitgruppe geäussert. Diese soll aus VertreterInnen des Quartiers, AnwohnerInnen und GZnutzerInnen das Bauprojekt begleiten und als Anlaufstelle für die Behörden und die BewohnerInnen für die Bauphase dienen. Abklärungen dazu laufen im Amt für Hochbauten.
Neubau Saalgebäude (ehemals blauer Saal)
Neues Saalgebäude an der Ampèrestrasse mit Büros im QG
Ateliergebäude und Kafi Tintefisch machen Rochade
Das heutige Kafi Tintefisch wird zum neuen Ateliergebäude
Das heutige Ateliergebäude wird zum Kafi Tintefisch
Bäume im Aussenraum gepflanzt
Im Aussenraum werden viele neue Bäume und Stauden gepflanzt
Märliwaldspielplatz mit Wasserpiel und Sandplatz
Neue Grillstelle und neue Wasseranschlüsse












